上海浦东区服务式公寓-浦发盛捷壹滨江服务公寓
Somerset Pudong Riverside · Shanghai
一线滨江生活 · 国际品牌运营 · 浦东长期居住优选
项目定位|盛捷品牌在浦东的标杆级滨江项目
浦发盛捷壹滨江服务公寓(Somerset Pudong Riverside)是 雅诗阁集团旗下盛捷(Somerset)品牌在上海布局的第四个项目,同时也是盛捷品牌在浦东的首个代表作,于 2022年12月正式开业。
项目由浦发集团与雅诗阁集团联合打造,以“高品质、强功能、高性价比的长期滨江居住”为核心定位,面向城市中坚商务人群与外派家庭,构建一处兼顾 居住舒适度、通勤效率与生活品质的现代服务式公寓社区。

区位价值|浦东北滨江 · 陆家嘴生活圈延展区
浦发盛捷壹滨江服务公寓坐落于浦东北滨江板块,距离黄浦江岸线仅约200余米,是浦东近年来重点发展的高品质滨水居住区域之一。
交通与区位优势:
• 步行约 300米直达地铁14号线歇浦路站
• 临近 18号线昌邑路站
• 毗邻浦东大道、世纪大道两大城市主干道
• 快速连接 大连路隧道 / 新建路隧道 / 人民路隧道
• 约4公里生活半径内覆盖:
• 陆家嘴金融中心
• IFC国金中心
• 世纪汇
• 浦东八佰伴
在这里,既可享受滨江生活的松弛感,也可高效通达上海核心商务资源。

建筑与环境特色|三栋高层 · 现代滨江社区形态
浦发盛捷壹滨江服务公寓由三栋独立高层建筑组成,共提供 600余套高端租赁单元,整体呈现出规模化但不失秩序感的国际化社区形态。
建筑亮点:
• 现代简约立面设计
• 大面积玻璃幕墙,采光充足
• 全户型配置阳台,增强居住通透感
• 部分高区单位可远眺黄浦江景
整体气质克制、干净、实用,符合盛捷品牌一贯的 “长期居住友好型” 产品哲学。

户型|高利用率精品一房 · 滨江实住优解
项目主力户型为约50㎡与65㎡精品一房,精准匹配当下市场对高品质、易打理、适合长期居住的需求。
浦发盛捷壹滨江服务公寓价格表:
房型 面积(M²) 年租月租金
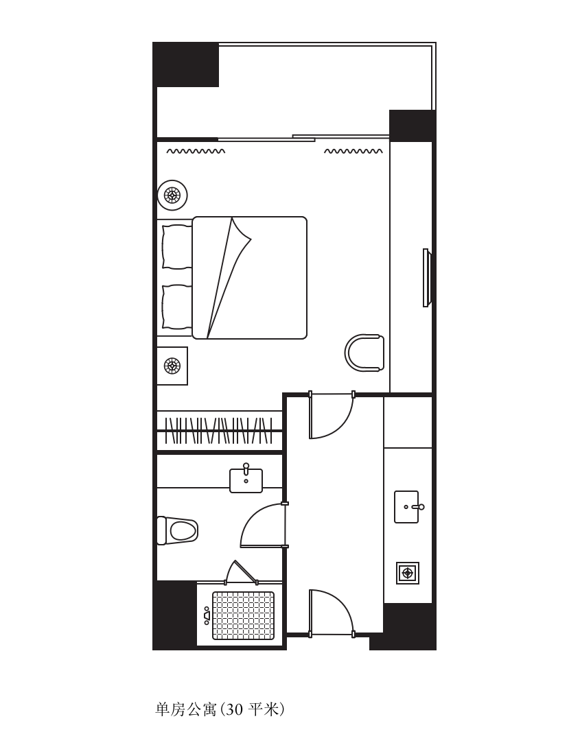
单房公寓 30 0.9-1.1万
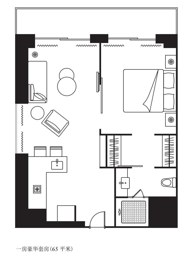
一房豪华套房 65 1.5-1.7万
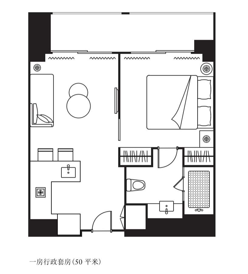
一房行政套房 50 1.2-1.5万
一房行政套房 65 1.5-1.6万
一房豪华行政套房 65 1.5-1.9万
浦发盛捷壹滨江服务式公寓出租电话:15921786368
• 一房全功能配置,空间动线清晰
• 50㎡户型配备 贯通式大阳台,为同面积产品中稀缺配置
• 全屋精装修,配置齐全家具家电
• 部分高区单位可享江景视野
无论是单人居住、情侣、还是短期家庭过渡,都能实现 “即住即稳” 的居住体验。
单房公寓




一房豪华套房





一房行政套房





一房行政套房



一房豪华行政套房




配套与服务|盛捷标准 · 长期居住无负担
作为雅诗阁旗下成熟品牌,浦发盛捷壹滨江在服务与运营层面高度标准化,强调稳定、可持续、易管理。
租金包含内容
• 物业管理费
• 发票
• 宽带 WiFi
• 每周2次客房打扫
• 每周1次布草更换
• 每平方米10元水电津贴
• 健身房等公共空间使用
• 24小时前台接待及安保服务
其他配套
• 全套家具、家电及餐厨具,拎包入住
• 早餐厅配套
• 可租地下车位
• 宠物友好(需押金及清洁费)
服务不追求奢华堆叠,而是强调 “长期住得省心”。

居住价值|滨江+性价比的理性之选
浦发盛捷壹滨江服务公寓并非走极致奢华路线,而是精准面向:
• 浦东金融、科技、航运及专业服务行业从业者
• 陆家嘴及世纪大道沿线外派商务人士
• 注重居住品质但理性控制成本的年轻家庭
• 偏好滨江环境、稳定服务与国际品牌背书的长期租户
在当前市场环境下,该项目在 “地段 × 品牌 × 户型效率 × 租金结构” 四个维度具备极强的综合竞争力。

把滨江生活,变成日常
浦发盛捷壹滨江,不以浮华定义价值,
而用稳定、舒适与效率,
让滨江生活真正融入日常。
这是一处 可以长期安心居住的浦东滨江解决方案。
上海浦发盛捷服务公寓租赁咨询
159-2178-6368
info@knowapartments.com



